3498 Centavo Court, HERNANDO BEACH, FL 34607
Active
Property Photos
Would you like to sell your home before you purchase this one?
Priced at Only: $725,000
For more Information Call:
Address: 3498 Centavo Court, HERNANDO BEACH, FL 34607
Property Location and Similar Properties
- MLS#: TB8497585 ( Residential )
- Street Address: 3498 Centavo Court
- Viewed: 5
- Price: $725,000
- Price sqft: $216
- Waterfront: Yes
- Wateraccess: Yes
- Waterfront Type: Canal - Saltwater
- Year Built: 2026
- Bldg sqft: 3360
- Bedrooms: 3
- Total Baths: 2
- Full Baths: 2
- Garage / Parking Spaces: 2
- Days On Market: 10
- Additional Information
- Geolocation: 28.4891 / -82.6545
- County: HERNANDO
- City: HERNANDO BEACH
- Zipcode: 34607
- Elementary School: Westside Elementary HN
- Middle School: Fox Chapel Middle School
- High School: Weeki Wachee High School
- Provided by: JT REALTY & ASSOCIATES
- Contact: Sarah Hill
- 352-279-2640

- DMCA Notice
-
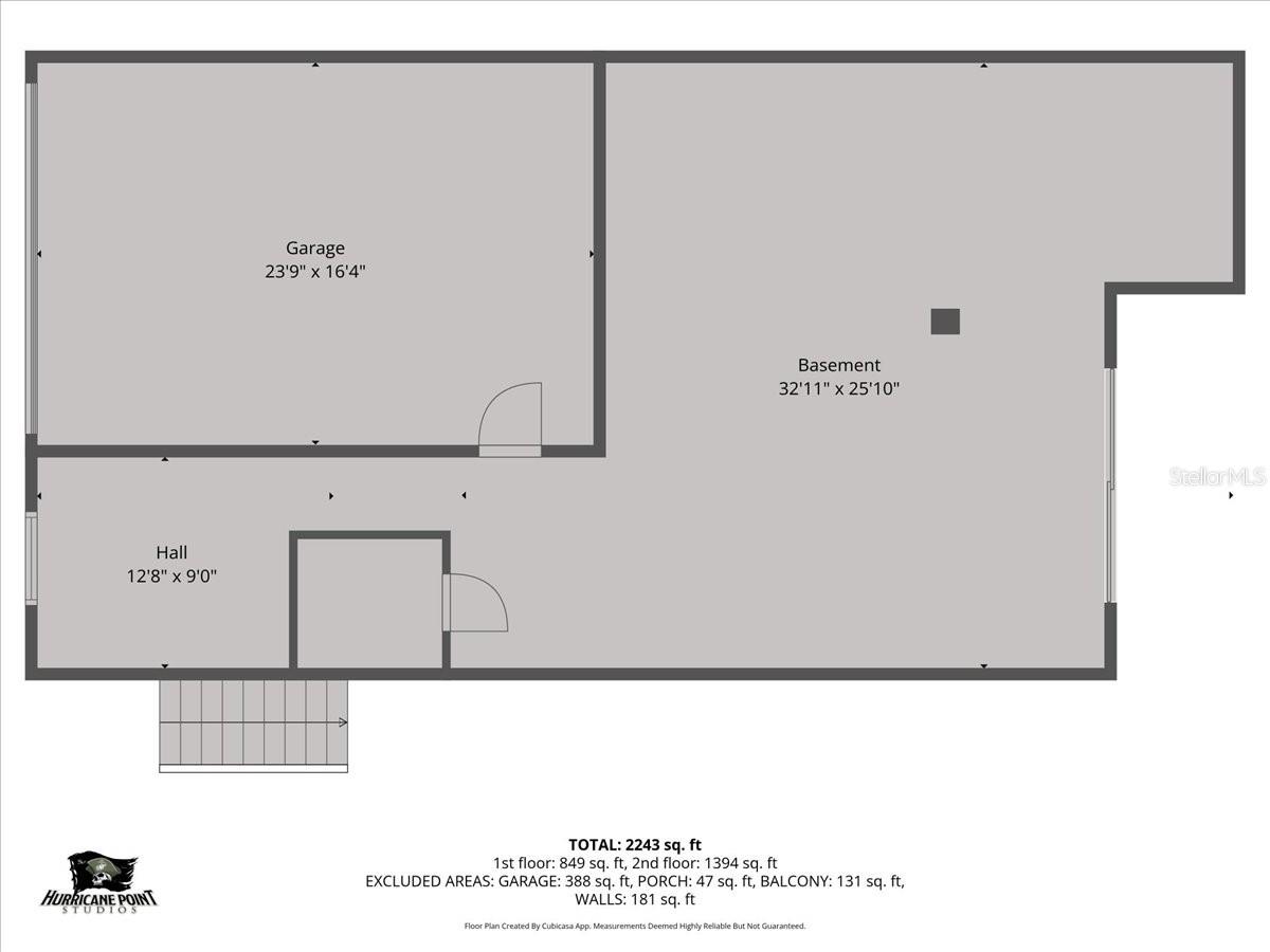
DescriptionUnder construction. Coastal craftsman new construction | direct gulf access | elevator shaft in place estimated completion by 6/30/26 or sooner. Experience the ultimate florida waterfront lifestyle in this brand new coastal craftsman style elevated home by custom home builder palmwood homes, ideally located on a deep water canal in hernando beach with direct gulf access and 50 feet of seawall and conservation views. This thoughtfully designed 3 bedroom, 2 bath home with an oversized 2+ car garage blends quality craftsmanship with modern coastal design. Built for durability, it features solid block construction and stucco on the lower level and hardie board siding with shaker accents on the second level. An elevator shaft is already in place, offering convenience for a future elevator install. Inside, the light and bright open concept great room showcases luxury vinyl plank flooring throughout and a tray ceiling with custom lighting. Triple sliding glass doors lead to a spacious second floor porch with tile and a coffered ceiling, creating seamless indoor outdoor living with peaceful nature preserve views and partial gulf views. The primary suite offers a relaxing retreat with waterfront and preserve views, dual walk in closets, and a spa inspired bathroom featuring double vanities and a floor to ceiling tiled walk in shower with glass enclosure, decorative accent band, and built in shelving. The kitchen is designed to impress, overlooking the living area and featuring quartz countertops, stainless steel appliances (oven, microwave, dishwasher, and refrigerator), soft close cabinetry, a custom subway tile backsplash, pantry, breakfast bar, deep single basin sink, and a dedicated coffee bar. Two generously sized guest bedrooms with large closets are located on the opposite side of the home, along with a full bathroom featuring custom tile and a tub/shower combination. Additional interior features include a laundry room with washer and dryer hookups and plumbing for a utility sink. The lower level offers 1500+ additional sf with exceptional space and functionality, featuring a spacious 2+ car garage with ample storage and a fully finished, textured, and painted area for a clean, polished look. A covered back porch with a coffered ceiling creates the perfect shaded space for outdoor entertaining, relaxing, or future customization. Step outside to a backyard with plenty of room to add a pool and create your own private waterfront oasis. With 50 feet of seawall and space to build a dock, this property is a true boater's dream with quick, direct access to the gulf. Items still be to completed as of 4 15 26: vinyl flooring throughout. Refrigerator and oven in the kitchen. Kitchen backsplash. Baseboards. New entrance stairs. Balcony railing. Sodding yard and landscaping. Hernando beach is a vibrant waterfront community that offers the best of coastal living boating, kayaking, paddleboarding, fishing, and more. Just minutes from the world famous weeki wachee springs, residents also enjoy close proximity to shopping, dining, hospitals, and top rated schools. The community is golf cart friendly and allows short term rentals with no hoa, no deed restrictions, making it perfect for full time residents, part time snowbirds, or investors. The suncoast parkway offers easy commuting to tampa, brooksville, and beyond.
Payment Calculator
- Principal & Interest -
- Property Tax $
- Home Insurance $
- HOA Fees $
- Monthly -
For a Fast & FREE Mortgage Pre-Approval
Apply Now
Apply NowFeatures
Building and Construction
- Builder Model: Island Breeze Custom
- Builder Name: PALMWOOD CONSTRUCTION
- Covered Spaces: 0.00
- Exterior Features: Sliding Doors
- Flooring: Luxury Vinyl
- Living Area: 1535.00
- Roof: Shingle
Property Information
- Property Condition: Under Construction
Land Information
- Lot Features: Cleared, Flood Insurance Required, FloodZone, Near Marina, Near Public Transit, Paved
School Information
- High School: Weeki Wachee High School
- Middle School: Fox Chapel Middle School
- School Elementary: Westside Elementary-HN
Garage and Parking
- Garage Spaces: 2.00
- Open Parking Spaces: 0.00
- Parking Features: Golf Cart Parking, Oversized, Tandem
Eco-Communities
- Water Source: Public
Utilities
- Carport Spaces: 0.00
- Cooling: Central Air
- Heating: Central
- Pets Allowed: Yes
- Sewer: Public Sewer
- Utilities: Cable Available, Electricity Connected, Sewer Connected, Water Connected
Finance and Tax Information
- Home Owners Association Fee: 0.00
- Insurance Expense: 0.00
- Net Operating Income: 0.00
- Other Expense: 0.00
- Tax Year: 2025
Other Features
- Appliances: Dishwasher, Electric Water Heater, Microwave
- Country: US
- Furnished: Unfurnished
- Interior Features: Ceiling Fans(s), Coffered Ceiling(s), High Ceilings, Kitchen/Family Room Combo, Living Room/Dining Room Combo, Open Floorplan, PrimaryBedroom Upstairs, Solid Surface Counters, Split Bedroom, Tray Ceiling(s), Walk-In Closet(s)
- Legal Description: HERNANDO BEACH UNIT 9 BLK 95 LOT 36
- Levels: Two
- Area Major: 34607 - Spring Hl/Brksville/WeekiWachee/Hernando B
- Occupant Type: Vacant
- Parcel Number: R13-223-16-2320-0950-0360
- Possession: Close Of Escrow
- Style: Elevated
- View: Water
- Zoning Code: R1B
Similar Properties
Nearby Subdivisions
Gulf Coast Ret
Gulf Coast Ret Unit 1
Gulf Coast Ret Unit 2
Gulf Coast Ret Unit 4
Gulf Coast Ret Unit 6
Gulf Coast Retreats
Hernando Beach
Hernando Beach Unit 10
Hernando Beach Unit 11
Hernando Beach Unit 12
Hernando Beach Unit 13
Hernando Beach Unit 13-b
Hernando Beach Unit 14
Hernando Beach Unit 7
Hernando Beach Unit 9
N/a
None
Not On List
Unplatted
- Wade M. Berlin, GREEN,PMN,RENE
- Tropic Shores Realty
- Mobile: 800.557.8193
- Mobile: 904.248.9848
- wadeberlin@homebloks.com






















































